Javni poziv za izkaz interesa za nakup gradbenih parcel na Šentviški Gori
Osnovni podatki
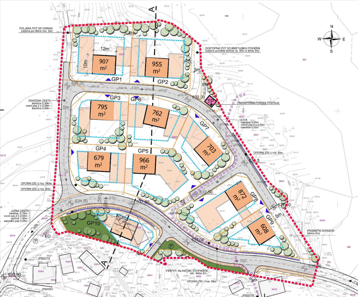
Občina Tolmin namerava prodati devet gradbenih parcel na severnem obrobju naselja Šentviška Gora. Gre za stavbna zemljišča na območju občinskega podrobnega prostorskega načrta (OPPN) Šentviška Gora, ki so namenjena za stanovanjsko gradnjo. V sklopu prodajnega postopka želi občina preveriti interes pri potencialnih kupcih, zato objavlja ta javni poziv za izkaz interesa za nakup gradbenih parcel na območju OPPN Šentviška Gora.
Predmet prodaje bo naslednjih devet gradbenih parcel (GP) v katastrski občini 2259 Šentviška Gora:
- GP1 – zemljišče s parc. št. 659/5 površine 907 m2 in ocenjene kupne vrednosti 17.840,00 EUR
- GP2 – zemljišče s parc. št. 659/6 površine 955 m2 in ocenjene kupne vrednosti 18.785,00 EUR
- GP3 – zemljišče s parc. št. 659/12 površine 795 m2 in ocenjene kupne vrednosti 15.638,00 EUR
- GP4 – zemljišče s parc. št. 659/16 površine 679 m2 in ocenjene kupne vrednosti 13.354,00 EUR
- GP5 – zemljišče s parc. št. 659/15 površine 966 m2 in ocenjene kupne vrednosti 19.000,00 EUR
- GP6 – zemljišče s parc. št. 659/13 površine 762 m2 in ocenjene kupne vrednosti 14.990,00 EUR
- GP7 – zemljišče s parc. št. 659/14 površine 703 m2 in ocenjene kupne vrednosti 13.828,00 EUR
- GP8 – zemljišče s parc. št. 659/19 površine 872 m2 in ocenjene kupne vrednosti 17.152,00 EUR
- GP9 – zemljišče s parc. št. 659/21 površine 608 m2 in ocenjene kupne vrednosti 11.959,00 EUR
Izhodiščna cena posamezne parcele je določena ob upoštevanju ocenjene vrednosti zemljišč, ki jo je po naročilu Občine Tolmin izdelal sodni cenilec. V izhodiščno ceno ni vštet 22% DDV, ki ga plača kupec.
Navedena zemljišča so označena na priloženi informativni skici. Lokacijo prikazujeta izseka z javnih portalov PISO (Prostorski informacijski sistem občin) in eProstor, kjer lahko preverite tudi natančnejše podatke o predmetnih zemljiščih. Informacije o prostorskih izvedbenih pogojih glede dejavnosti, namembnosti in vrstah dopustnih posegov v prostoru najdete v Odloku o občinskem podrobnem prostorskem načrtu Stanovanjska zazidava Šentviška Gora (ŠG 01), objavljenem v Uradnem listu RS, št. 59/2017 z dne 27. 10. 2017, oz. na tej povezavi https://www.uradni-list.si/glasilo-uradni-list-rs/vsebina/2017-01-2869/odlok-o-obcinskem-podrobnem-prostorskem-nacrtu-stanovanjska-zazidava-sentviska-gora-sg-01.
»Ureditev parcel na Šentviški Gori združuje razvoj podeželja z reševanjem stanovanjske problematike. Teh devet zazidljivih parcel, ki jih ponujamo v tem sklopu, odpira možnost mladim družinam, da si ustvarijo dom na Šentviški planoti. Če sem malo slikovit, so tam jutra sončna namesto meglena, travniki in gozdovi so na dosegu roke, do Tolmina pa vas loči 20 minutk vožnje. Območje je že opremljeno z optičnim omrežjem, občina stalno vlaga tudi v cestne povezave, komunalno opremljanje novih parcel pa bo na vrsti v drugi polovici leta 2026, tako da bodo novi lastniki lahko takrat sočasno že pristopali h gradnji. Gre za nov pomemben korak pri urejanju stanovanjske problematike na Tolminskem. Izhodiščne cene so po mojem mnenju zelo dostopne, tako da zainteresirane kupce vabim k prijavi,« je napoved prodaje zadovoljno pospremil župan Alen Červ.
Kupec bo lahko samo fizična oseba in bo lahko v procesu prodaje kupil samo eno gradbeno parcelo. Nepremičnine, ki bodo predmet prodaje, se bodo prodajale z namenom spodbujanja stanovanjske pozidave na območju občine, za resen namen kupca, da bo do določenega roka izvedel aktivnosti za gradnjo in uporabo stanovanjskega objekta. V prodajni pogodbi se bo zato za nasprotne primere glede predmeta prodaje ustanovila odkupna pravica v korist Občine Tolmin. Občina si pridržuje uveljavljati odkupno pravico, če kupec v 18 mesecih ne pridobi gradbenega dovoljenja, v 30 mesecih ne začne z gradnjo in v 48 mesecih ne pridobi uporabnega dovoljenja. Navedeni roki začnejo teči od dneva pridobitve lastninske pravice oziroma od dneva, ko bo Občina Tolmin pridobila gradbeno dovoljenje za komunalno infrastrukturo na območju OPPN, kar od navedenega bo kasneje.
Interesente za nakup vabimo, da izpolnijo priloženi obrazec za izkaz interesa ter ga do vključno petka, 30. januarja 2026, posredujejo na e-naslov tajnistvo@tolmin.si. Po izteku roka bomo vse interesente kontaktirali na posredovane kontaktne podatke. Morebitna dodatna vprašanja lahko naslovite na tajnistvo@tolmin.si ali nas v času uradnih ur pokličete na 05 381 95 00.




